
bureau d’architecture
Blanca Aguilar, Benoit Soulié
< INFOS ET PROJETS
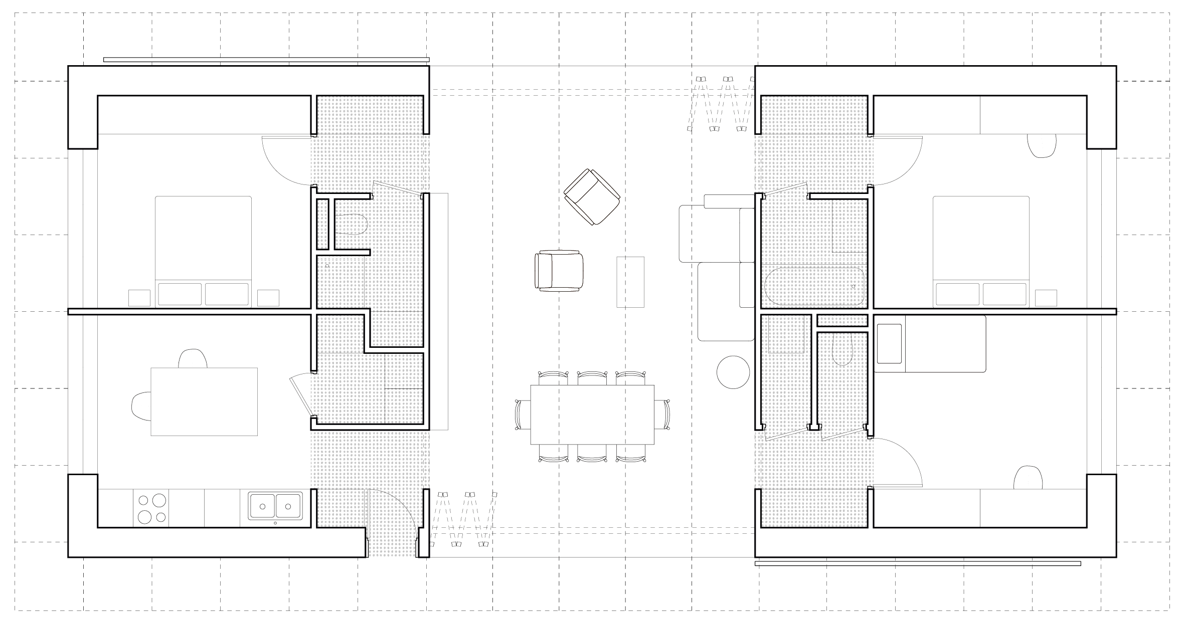
Maison-préau
La commande présente un double enjeu: préserver les droits à construire sur la parcelle dans le cadre d’une révision du PLU et valoriser ce foncier par la construction d’une maison individuelle portant des ambitions architecturales et environnementales fortes.
L’habitation s’organise autour d’un espace traversant pour la vie collective, s’ouvrant intégralement pour devenir une grande pièce extérieure aux beaux jours. La maison est construite selon des procédés de construction élémentaires faisant la part belle aux matériaux bruts, en réponse à une recherche d’économie de moyens.
Lieu – Saint-Laurent les Tours
surface – 117 m²
budget – 245 000€
maître d’Ouvrage – privée
équipe – patio b
étude 2024

